Электромонтажные работы в квартире, коттедже

Электромонтажные работы – поэтапный монтаж электрических проводок под розетки, выключатели, бытовые, осветительные и сигнальные приборы, а так же монтаж групповых электрических щитов.

Мы выполняем комплексные электромонтажные работы «под ключ», включая проектирование, монтаж и финальную настройку всех систем. Мы работаем по утвержденным регламентам, соблюдаем требования СНиП и ПУЭ, а также используем только сертифицированные материалы и оборудование.


Все работы выполняются по единому технологическому циклу: от разработки проекта и штробления стен до сборки электрощита, установки розеток, освещения и подключения оборудования.


Такой подход обеспечивает точность, согласованность и полную совместимость всех инженерных систем.

Мы – делаем так, чтобы вы были спокойны во время ремонта и наслаждались готовым интерьером

Вы – наблюдаете, как мы шаг за шагом выполняем договоренности

  • 20

    лет на рынке
  • 5

    лет гарантия на работы
  • 500+

    реализованных проектов
  • 30 млн.

    просмотров на YouTube
  • 95%

    соответствие сметы расчету

внимание!

Компания REMCRAFT выполняет электромонтажные работы только при КОМПЛЕКСНОМ ремонте!

Отдельно электромонтажные работы не выполняем!


Данный материал носит исключительно информационный характер.

сотрудничество

В процессе этого производятся следующие виды работ:

 Электромонтажная инфраструктура
создает основу безопасной и долговечной электросети
скрытая прокладка силового кабеля (бетон, монолит, кирпич) открытая прокладка силового кабеля, кабель каналы, кабельные лотки штробление стен под проводку монтаж дополнительной системы уравнивания потенциалов
 Сборка и защита электросети
обеспечивает стабильную и контролируемую работу системы
сборка электрощитов и слаботочных щитов установка автоматов установка узо установка счетчиков электроэнергии монтаж понижающих трансформаторов подключение внутреннего электрооборудования - плиты, духовки, водонагреватели, котлы, полотенцесушители и др.
 Управление, комфорт и слабые токи
отвечает за функциональность и удобство эксплуатации
устройство слаботочной разводки, разводка антенных, телефонных и интернет кабелей установка розеток, выключателей, проходных выключателей, датчиков движения, таймеров монтаж систем видеонаблюдения, сигнализаций, домофонов установка светильников, люстр, бра, светодиодных шлангов изготовление проекта электрики и согласование - выполняется только с электромонтажными работами установка и подключение кондиционеров
Строительная компания REMCRAFT выполняет только комплексные электромонтажные работы «под ключ».

Посетите любые объекты и убедитесь в единых стандартах качества Remcraft.

Портфолио

принципы качественного электромонтажа, которых мы придерживаемся

Комплексный подход

Работы по электромонтажу проводятся на любых жилых объектах: квартира, коттедж (бетон, кирпич, дерево), дача, загородный дом. 

Наши специалисты выполняют как наружные электромонтажные работы по обеспечению освещения на улице, так и в самом здании.


Выгодные условия

Мы можем качественно выполнить все инженерные работы: электромонтажные работы, сантехнические работы, установку кондиционеров.

Это упрощает процесс поиска и согласования работ между разными бригадами, также позволяет иметь гарантию "в одном лице".

Скорость работы

Высокая скорость выполнения работ: выполнение электромонтажных работ в квартире 100 м. кв. занимает 5-7 дней.

Собственная служба снабжения

Мы занимаемся закупкой всех материалов: провода, установочные коробки, щитовая автоматика, крепеж, сантехническая арматура, трубы, и т.д.

Консультационные услуги

Предоставляем профессиональные консультации и помощь в проектировке электрики, месте расположения выключателей, розеток и других электрических приборов.

Соблюдение нормативов

Все электротехнические работы выполняются согласно СНиП (строительные нормы и правила) и ПУЭ(Правила устройства электроустановок).

Гарантия на работы

Гарантия на электромонтажные работы до 10 лет. Более того, при заказе услуг по монтажу водоснабжения в квартире или даче, сантехники и электрики в комплексе, мы предоставляем скидку на все работы 5-10% в зависимости от объема.

Условия оплаты

Оплата делится на несколько этапов.

Более того, при заказе услуг по монтажу водоснабжения в квартире или даче, сантехники и электрики в комплексе, мы предоставляем скидку на все работы 5-10% в зависимости от объема.

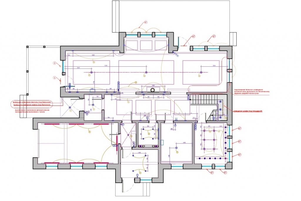
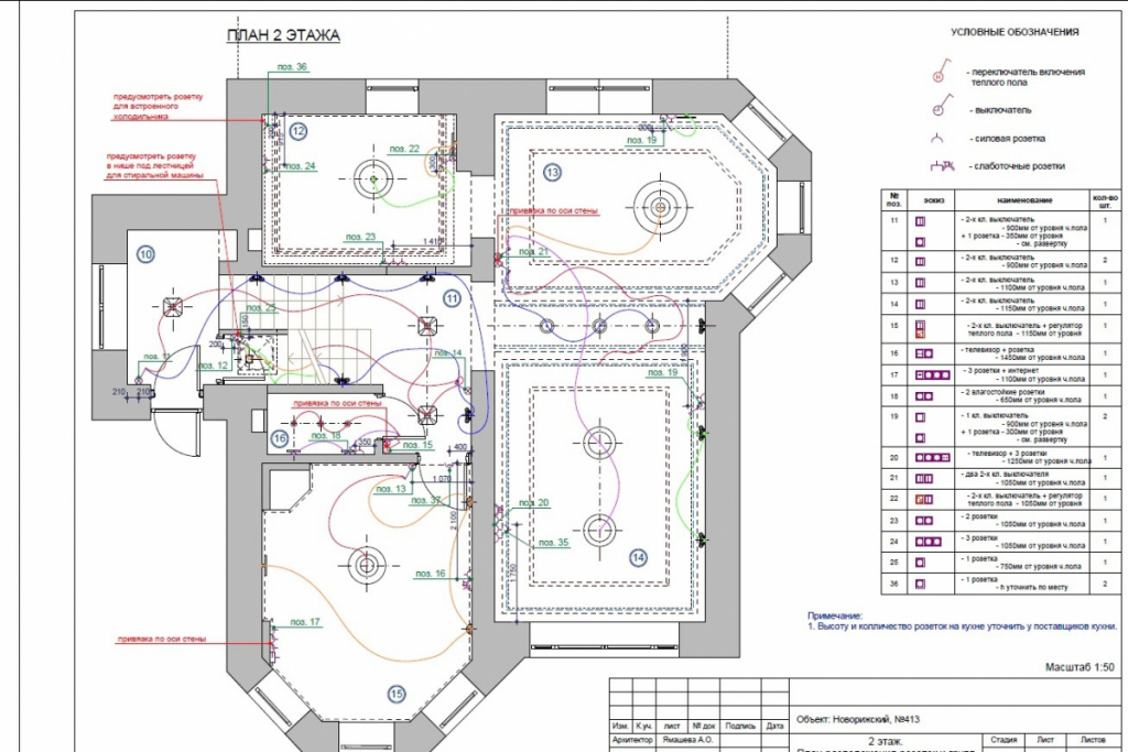
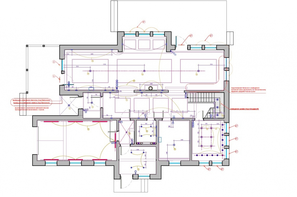
порядок выполнения электромонтажных работ

Подготовка плана электрики

В первую очередь вам необходимо составить бытовой план размещения выключателей, розеток, элементов освещения и бытовых электрических приборов. Чтобы это сделать, требуется четко понимать дизайн вашей квартиры и расстановку мебели. Как правило, размещение розеток "на глаз" заканчивается достаточно печально. Перед составлением плана электромонтажа наши мастера дадут подробную консультацию по всем вопросам.

Встреча с инженером

После составления плана, необходимо встретиться с нашим инженером для возможной корректировки: дело в том, что в большинстве случаев мы можем подсказать определенные технические решения которые вы могли либо не знать, либо забыли указать. После согласования, по вашему плану, мы делаем рабочий электропроект.

Черновой этап электромонтажа

По рабочему электропроекту начинается черновой этап электромонтажных работ: штробление стен, устройство силовой проводки, установка подрозетников, сборка распаечных коробок, установка и сборка электрического щита. Для выполнения этого этапа в квартире, предварительно должны быть возведены перегородки и отштукатурены стены. Возможно выполнение работ по электромонтажу и до штукатурки стен, но это ведет к небольшому увеличению стоимости работ.

Завершение электромонтажных работ

Завершающий этап электромонтажных работ выполняется после поклейки обоев, покраски потолков и работ по укладке плитки. В этот этап входят: установка розеток, выключателей, светильников, люстр, бра и подключение электроприборов.

современные стандарты электромонтажа

В этом видео делимся 18 правилами идеального электромонтажа - теми стандартами, по которым мы проектируем и собираем электрику, чтобы она была безопасной, долговечной и эстетичной в каждом интерьере.

Электрика: до штукатурки или после

В Remcraft монтаж электрики выполняется только после штукатурки.

Мы приняли такой порядок проведения работ за стандарт в нашей компании, и у этого решения есть 5 причин. Мы соблюдаем технологию, чтобы система служила безупречно долгие годы.

  • Геометрия помещения

    Известна четкая геометрия помещения. Это гарантирует точность расположения электроточек, согласно дизайн-проекта

  • Экономия на этапе штукатурки

    Подрозетники выставляются сразу, провода не мешают штукатурам выполнять свою работу

  • Безопасность

    Отсутствует риск механического повреждения проводов, поскольку следующим этапом идет заливка полов

  • Возможность проверить работу

    Электрощит сразу собирается и монтируется на объекте, что дает возможность нормально проверить и принять выполненную работу

  • Возможность изменений

    Штробы остаются открытыми до малярных работ. Это дает возможность внести незапланированные изменения в электропроводку малыми трудозатратами.

портфолио электромонтажных работ Remcraft

ЖК Sky House - 146 м²
ЖК Хорошевский - 100 м²
ЖК Sky House - 112 м²
ЖК Вавилова - 100 м²
ЖК Шмидтовский - 110 м²

рекомендуем посмотреть

  • Инженерные системы
  • Проектирование
  • Кондиционирование
  • Отопление
  • Водоснабжение
  • Технический контроль
  • Объекты в процессе
  • Наше качество
  • Плиточные работы
  • Этапы ремонта
  • Гипсокартонные работы
  • Устройство цементной стяжки
  • Штукатурные работы
  • Устройство межкомнатных перегородок и их виды
  • Демонтажные работы
  • Культура производства